閉じる

  •  
 
 

閉じる

 
 

更新日:2022年3月31日

ここから本文です。

おせんし倶楽部

高齢者向け優良賃貸住宅は,高齢者が安全に安心して住めるように,バリアフリーなどの配慮や,緊急時の対応など,適正な管理がされている,県が認定した優良な賃貸住宅です。
  • 団地名
    おせんし倶楽部
  • 所在地
    いちき串木野市東塩田町30番地
  • 間取り
    1R,1DK
  • 団地戸数
    20戸
  • 竣工年月
    平成19年3月
  • 共益費
    3,000円
  • 駐車場
    1台1,500円
  • 契約家賃
    住戸Aタイプ:38,000円,住戸Bタイプ:55,000円,住戸Cタイプ:45,000円
  • 家賃減額補助
  • 実際の家賃(入居者負担額)
    住戸A:19,900円~30,800円
    住戸B:33,700円~52,100円
    住戸C:23,800円~36,800円
    ※入居者の所得により変わります。
  • 敷金
    契約家賃の3ヶ月分

外観写真

おせんし倶楽部外観写真

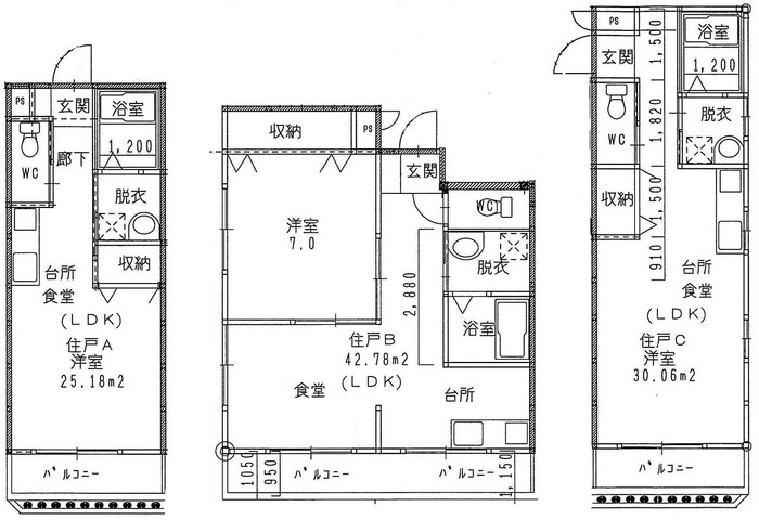
間取り

まどり
間取りは代表例です。個別の間取り詳細は管理者へお問い合わせください。
 
 
お問い合わせは,電話又はFAXでお願いいたします。
  • 管理者
    (株)伊集院殖産日置市伊集院町郡2丁目60番地
    TEL099-273-0039FAX099-273-3399

よくあるご質問

このページに関するお問い合わせ

土木部建築課住宅政策室

より良いウェブサイトにするためにみなさまのご意見をお聞かせください

このページの情報は役に立ちましたか?

このページの情報は見つけやすかったですか?