閉じる

  •  
 
 

閉じる

 
 

更新日:2022年6月21日

ここから本文です。

グランシニアマンション風音

高齢者向け優良賃貸住宅は,高齢者が安全に安心して住めるように,バリアフリーなどの配慮や,緊急時の対応など,適正な管理がされている,県が認定した優良な賃貸住宅です。
  • 団地名
    グランシニアマンション風音
  • 所在地
    薩摩川内市田崎町630番17
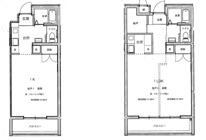
  • 間取り
    1K,1LDK
  • 団地戸数
    24戸
  • 竣工年月
    平成20年3月
  • 共益費
    3,000円
  • 駐車場
    1台2,000円
  • 契約家賃
    住戸1タイプ(1K):50,000円,住戸2タイプ(1LDK):70,000円
  • 家賃減額補助
  • 実際の家賃(入居者負担額)
    住戸1タイプ(1K):28,700円~50,000円
    住戸2タイプ(1LDK):40,300円~70,000円
    ※入居者の所得により変わります。
  • 敷金
    契約家賃の3ヶ月分

外観写真

グランシニアマンション風音外観写真

間取り

まどり
間取りは代表例です。個別の間取り詳細は管理者へお問い合わせください。
 
 
お問い合わせは,電話又はFAXでお願いいたします。
  • 管理者
    (有)マルゼン商事薩摩川内市大小路町19-8
    TEL0996-22-3521FAX0996-22-3548

よくあるご質問

このページに関するお問い合わせ

土木部建築課住宅政策室

より良いウェブサイトにするためにみなさまのご意見をお聞かせください

このページの情報は役に立ちましたか?

このページの情報は見つけやすかったですか?